Skip to content
  • 403-675-3276
  • Connect
    • Email
    • Facebook
    • LinkedIn
    • Instagram
approve logo
Skip to content
  • Home
  • About
    • About
    • Testimonials
    • Community Support
  • Featured Listings
    • Featured Listings
    • Past Sales
    • Office Listings
  • Property Search
    • Banff Real Estate
    • Canmore Real Estate
    • MD of Bighorn Real Estate
      • Dead Man’s Flats
      • Exshaw
      • Lac des Arcs
      • Harvie Heights
    • Kananaskis Real Estate For Sale
    • Custom Search
  • Resources
    • Buy
      • Buyer’s Guide
      • Mortgage Calculator
      • Buy With Barry
    • Sell
      • Seller’s Guide
      • Home Evaluation
      • Sell With Barry
  • Build With Barry
    • Projects
  • Blog
approve logo
Sold

220B 1 17th

Lions Park – Canmore, AB

10
  • 220B 1 17th
  • $399,900
  • 1 bedroom
  • 1 bathroom
  • 600 sqft
1 of 10
Courtesy of Jack Aiken of Re/Max Alpine Realty
  • Details

  • List Price $399,900
  • Style Loft/Bachelor/Studio
  • Bedroom 1
  • Bathroom 1
  • Floor Space 600 sqft
  • Condo Fees $390
  • Amenities Breakfast Bar, Built-in Features, Closet Organizers, High Ceilings, Kitchen Island, Natural Woodwork, No Animal Home, No Smoking Home, Open Floorplan, See Remarks, Storage
  • Address 220B 1 17th, Canmore, AB, T1W 1Y1

About

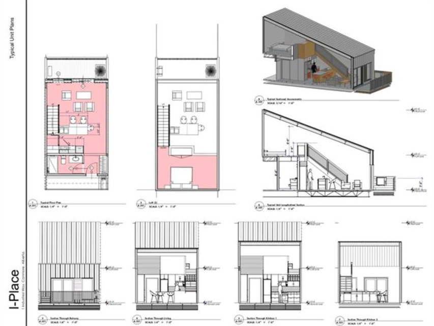
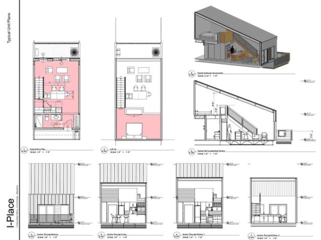
iPlace Residential Studios
Welcome to a unique residential & commercial community with sustainability at its core. iPlace is now pre-selling residential studios. Nestled on the second level of iPlace, 1 bedroom, 1 bathroom studios will boast 582 sq ft of contemporary living over 2 levels with access to unique amenities. Studios include bright kitchens with quartz countertops, eating bar, ss appliances & ample cabinetry, open to the spacious living area offering large windows with access to a balcony to enjoy the views. A generous, chic bathroom & in suite laundry will complete the main level. The open loft level features an oversized bedroom space with substantial storage. Shared parking & bike storage available. Don’t miss this excellent opportunity to live in the heart of the iPlace community. Occupant must work a minimum of 20 hrs/week in the Bow Valley.

Contact

Barry Nestransky | Canmore & Banff Real Estate
  • A featured listing of
    Barry Nestransky | Canmore & Banff Real Estate
  • My Office RE/MAX Alpine Realty
  • Mobile 403-675-3276
  • Email barrynest@remax.net

Community

Mortgage calculator

Newsletter Sign Up

Receive the latest Canmore and Banff listings, current market conditions, community news and events, home and decor tips, and more!

Contact
403-675-3276
barrynest@remax.net

Office
403-678-5890
104 – 709 Main Street
Canmore, AB T1W 2B2
PO Box 8823

Contact
403-675-3276
build@grassidevelopments.com
 

RE/MAX Alpine Realty — 104 – 709 Main Street, Canmore, AB T1W 2B2 PO Box 8823 — 403.678.5890
© 2026 Barry Nestransky | Canmore & Banff Real Estate
Home / A1184601
Data is supplied by Pillar 9™ MLS® System. Pillar 9™ is the owner of the copyright in its MLS® System. Data is deemed reliable but is not guaranteed accurate by Pillar 9™. The trademarks MLS®, Multiple Listing Service® and the associated logos are owned by The Canadian Real Estate Association (CREA) and identify the quality of services provided by real estate professionals who are members of CREA. Used under license. Listing data last updated 2026-04-20T08:11:13Z.
Powered by Avenue
The growth engine for driven real estate professionals.